"Саламандра". Развлекательный комплекс на воде

Проект «Саламандра» представляет собой многофункциональный развлекательный комплекс класса «люкс» на воде, фактически созданный на основе корпуса сухогруза Р-86. Объект самоходный и имеет возможность курсировать по Москве-реке, в центральной зоне города.
На данный момент это не типовой для Москвы объект в своем классе. Он проектировался как ресторан высокого уровня на воде с возможностью приготовления еды прямо на борту при сохранении самостоятельного хода по Москве-реке. Но также его особенность заключается в том, что при подобных характеристиках удалось уйти от цитирования элементов судостроительной эстетики или от образа «дома на воде», придав конструкции визуально активный и актуальный облик.
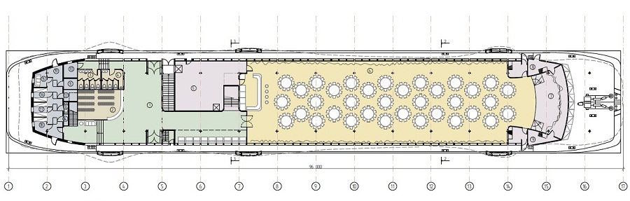
Во время работы над архитектурным решением этого судна удалось достичь редкого единодушия с заказчиком – ему хотелось получить презентабельный ресторан на воде, имеющий статус неповторимого «тусовочного» места с притягательной аурой, а авторам проекта, в свою очередь, хотелось создать современный объект с применением технологий, которые стали доступны только в последнее время. В итоге выбор пал на вариант, представляющий собой самонесущую металлическую сетчатую конструкцию с заполнением светопроницаемыми модулями, очертаниями напоминающую диковинное земноводное. Основной объем внутреннего пространства занимает обеденный зал на 250-300 человек с галереей и эстрадой.
Парадный холл приглашает посетителей подняться на верхнюю палубу к бару и на обзорную площадку - в зону VIP на корме. В носовой части судна – в «голове» «Саламандры» – расположена рубка капитана. Кормовая часть главной палубы отведена под каюты команды и служебные помещения. Входы на палубу располагаются по обоим бортам, что позволяет судну швартоваться как к правому, так и к левому берегам, избегая разворота, вызывающего проблемы, связанные с внушительными габаритами судна.


В рамках данного проекта был разработан ряд элементов оборудования, позволяющий рассматривать среду комплекса в едином ключе – от масштаба объекта в пространстве города до деталей интерьера. От комплекса в целом до светильника, скамьи, стойки.

В 2014 году проект был доработан и скорректирован для использования в условиях акватории Ближнего Востока. Увеличение габаритов судна и изменение конструкции корпуса не затронуло принципиальное решение оболочки и архитектурного облика «Саламандры».

Проектирование: 2009-2010/2014.
Авторы: В.Кузьмин, М. Фидельман/А. Мамаева. «Поле-Дизайн».
Визуализация: М. Фидельман.
Площадь: 1550/2000 кв. м.


Обсуждение (0)

Комментировать

Чтобы подать работу на конкурс нужно загрузить её в портфолио