Запрос смены пароля
Если вы забыли пароль, введите свой E-mail, указанный при регистрации.
Ссылка для смены пароля будет выслана вам на почту
Форма смены пароля для пользователя
E-mail:
Новый пароль должен содержать не менее 6 символов
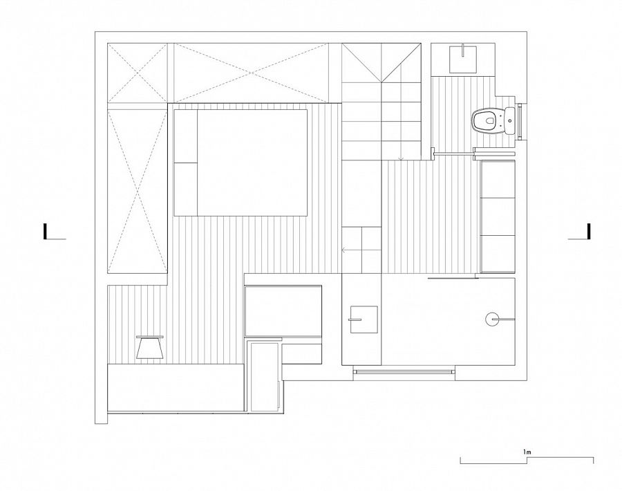
Изначально антресоли в квартире площадью 35 кв.м не было, зато было огромное пространственное преимущество перед другими апартаментами – высокие потолки. Именно эта особенность жилища и позволила архитекторам запроектировать верхний уровень и организовать горизонтальное зонирование на первом этаже. Внизу расположены открытая кухня, гостиная, веранда-столовая и санузел. Наверху запроектирована спальня, ванная комната, кабинет и второй санузел.
Все свободные пространства на антресоли и главном этаже отданы под разнообразные системы хранения. Даже небольшой подиум и лестница, ведущая в верхнюю часть дуплекса, сконструированы так, чтобы можно было внутри них хранить разнообразные вещи. Белый цвет был выбран архитекторами для декора изначально. Материалы тоже подбирали соответствующие. Например, на стенах кухни плитка сливочного оттенка, а все полы в квартире покрыты деревом гарапейрой, окрашенным в белый цвет. Темные акценты в интерьере присутствуют в виде оконных рам и тонированного бетона в душевой наверху.
Cookie – это небольшие текстовые файлы, размещаемые на вашем устройстве посещаемыми сайтами. Они необходимы для корректной работы основных функций сайта (например, авторизации), а также помогают персонализировать контент и анализировать эффективность рекламы для специалистов. Технически необходимые cookie устанавливаются автоматически. Для использования всех остальных типов cookie (функциональные, аналитические, рекламные) нам требуется ваше согласие.
Вы можете изменить настройки или отозвать согласие в любое время во всплывающем окне. Подробнее об использовании данных читайте в Политике обработки персональных данных.
Пожалуйста, выберите, какие файлы cookie могут быть включены на вашем устройстве. Прежде чем отключать какие-либо файлы cookie, ознакомьтесь с нашей Политикой обработки персональных данных, чтобы узнать, почему и как используются файлы cookie.
Нажмите «Принять все», чтобы принять все файлы cookie. Нажмите «Подтвердить изменение настроек», чтобы сохранить выбранные настройки.


