Запрос смены пароля
Если вы забыли пароль, введите свой E-mail, указанный при регистрации.
Ссылка для смены пароля будет выслана вам на почту
Форма смены пароля для пользователя
E-mail:
Новый пароль должен содержать не менее 6 символов
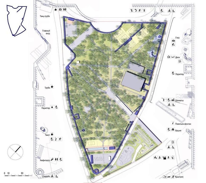
Конструкция галереи по «внешнему» контуру предполагает возможность фактического ограждения территории Парка с помощью модульных элементов из просечного/перфорированного металлического листа и живой изгороди из быстро растущих и вьющихся растений.
Ворота для прохода в Парк со стороны стадиона и других входных групп решаются в структуре галереи и подчинены её модульному и конструктивному решению.
Система пандусов, обращенных в ключевые зоны Парка, позволяет обеспечить доступность галереи для всех категорий посетителей: родителей с детьми, спортсменов и созерцателей, не только для молодежи, но также для маломобильных групп граждан и пожилых людей.
Наиболее активные виды физкультуры и спорта – экстремальные локализуются на дополнительной территории вокруг въезда в подземную автостоянку.
Фонтан на склоне представляется возможным расчистить и, восстановив мозаики, реконструировать, превратив, например, в основной элемент интерьера остекленного павильона, возводимого вокруг бывшего фонтана. «Павильон» может выполнять функции информационно-экспозиционного обеспечения работы Парка, являясь объектом круглогодичного, всепогодного использования.
Альтернативными решениям могли бы стать:
«Агора»: пологий амфитеатр со скамьей по периметру бортов фонтана, спускающийся по склону и замыкающийся встречным амфитеатром – навесом;
«Динамовская горка»: геоморфный пологий газон-клумба, решенный в бело-голубых («динамовских») цветах высаживаемых растений. В подъемах искусственного рельефа устраиваются пустоты над восстановленными мозаиками, взглянуть на которые можно сквозь смотровые проемы, окна или амбразуры, устраиваемые в полых внутри холмах-клумбах.
Памятник Льву Яшину предлагается перенести на пересечение будущей центральной аллеи и одного из ключевых входов на галерею, формирующих зону спортивных площадок.
Не являясь собственно, павильоном, галерея формирует средовую активность в Парке, на протяжении практически всего периметра, почти не затрагивая внутренние его территории. «Буферные», транзитные зоны приобретают многофункциональную полноту, пешеходные и велопотоки разводятся, движение по-над галереей организуется как кольцевой транзит – рекреационный, прогулочный и физкультурный, соединяя периферийные участки локальной активности в линию, «путь» и поднимая его на новые горизонты – «Горизонты движения».
Cookie – это небольшие текстовые файлы, размещаемые на вашем устройстве посещаемыми сайтами. Они необходимы для корректной работы основных функций сайта (например, авторизации), а также помогают персонализировать контент и анализировать эффективность рекламы для специалистов. Технически необходимые cookie устанавливаются автоматически. Для использования всех остальных типов cookie (функциональные, аналитические, рекламные) нам требуется ваше согласие.
Вы можете изменить настройки или отозвать согласие в любое время во всплывающем окне. Подробнее об использовании данных читайте в Политике обработки персональных данных.
Пожалуйста, выберите, какие файлы cookie могут быть включены на вашем устройстве. Прежде чем отключать какие-либо файлы cookie, ознакомьтесь с нашей Политикой обработки персональных данных, чтобы узнать, почему и как используются файлы cookie.
Нажмите «Принять все», чтобы принять все файлы cookie. Нажмите «Подтвердить изменение настроек», чтобы сохранить выбранные настройки.


