Запрос смены пароля
Если вы забыли пароль, введите свой E-mail, указанный при регистрации.
Ссылка для смены пароля будет выслана вам на почту
Форма смены пароля для пользователя
E-mail:
Новый пароль должен содержать не менее 6 символов
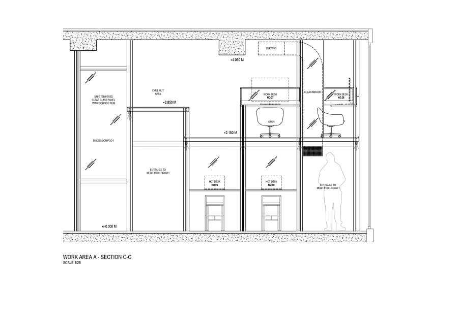
По словам авторов, в качестве объектов вдохновения (пусть и сопоставить их можно с огромным трудом) им пришли на ум, во-первых, Храм Святого Семейства Антонио Гауди, а во-вторых, типичные и всем знакомые детские игровые городки. Казалось бы, странные параллели. Дело в том, что внутреннее пространство офиса представляет собой разноуровневую металлическую каркасную структуру, почти целиком остекленную, причем стекло оклеено специальной дихроической пленкой 3M. Получается оптический эффект: при обзоре с разных углов цвет стекла меняется. Архитекторы уверяют, что схожий эффект можно наблюдать при осмотре протравленных витражей Sagrada Familia. Что касается сравнения с детским городком, то тут авторы скорее стремились передать живость и оригинальность офисной атмосферы.
Конечно, этот интерьер можно назвать инновационным. Главным образом благодаря необычному функциональному зонированию и нетрадиционным элементам вроде столов-конторок и турников для проведения физкультминуток. «Спокойные» озелененные зоны для расслабления перемежаются динамичными и активными, дизайн которых способствует концентрации внимания. Интерьер вдохновляет, способствует совместной работе и социальному взаимодействию; 80 дизайнеров, операторов, инженеров, маркетологов и SMM-специалистов с удовольствием это подтвердят.
Cookie – это небольшие текстовые файлы, размещаемые на вашем устройстве посещаемыми сайтами. Они необходимы для корректной работы основных функций сайта (например, авторизации), а также помогают персонализировать контент и анализировать эффективность рекламы для специалистов. Технически необходимые cookie устанавливаются автоматически. Для использования всех остальных типов cookie (функциональные, аналитические, рекламные) нам требуется ваше согласие.
Вы можете изменить настройки или отозвать согласие в любое время во всплывающем окне. Подробнее об использовании данных читайте в Политике обработки персональных данных.
Пожалуйста, выберите, какие файлы cookie могут быть включены на вашем устройстве. Прежде чем отключать какие-либо файлы cookie, ознакомьтесь с нашей Политикой обработки персональных данных, чтобы узнать, почему и как используются файлы cookie.
Нажмите «Принять все», чтобы принять все файлы cookie. Нажмите «Подтвердить изменение настроек», чтобы сохранить выбранные настройки.


