Проект: 2012.12.19
Разместил(а): Мария Махонина
Дата размещения: 19 декабря 2012
Раздел: Интерьер
Тип файла: Документация
Здание: Квартира
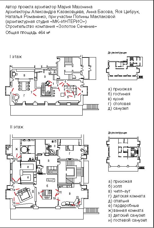
Общая площадь: 464 кв.м.
Цвет:
Авторы проекта: Махонина Мария
Участники проекта: Казаковцева Александра, Басова Анна, Цебрук Яся, Романенко Наталья
Вы участвовали в проекте?
Вы хотите получить ответ:
19.12.2012/224014 - 2012.12.19
Проект: 2012.12.19
Разместил(а): Мария Махонина
Дата размещения: 19 декабря 2012
Раздел: Интерьер
Тип файла: Документация
Здание: Квартира
Общая площадь: 464 кв.м.
Цвет:
Авторы проекта: Махонина Мария
Участники проекта: Казаковцева Александра, Басова Анна, Цебрук Яся, Романенко Наталья
Вы участвовали в проекте?
Задать вопрос по проекту