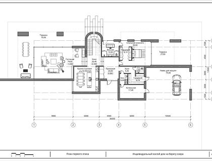
Проект двухэтажного загородного дома из монолитного железобетона площадью 1000 м.кв. с плоской кровлей и панорамным остеклением. Участок — лесной массив в пригороде Санкт-Петербурга. Встроенный гараж на 3 автомобиля. Отделка фасада: материалы в серых, рыжих и земляных тонах, гармонирующие с ландшафтом. 1-й этаж — общественная зона: гостиная, кухня, кабинет, детская игровая, спортзал, гостевая спальня. 2-й этаж — приватная зона: два блока мастер-спален + две детские комнаты.

Роман Коротков Россия, Санкт-Петербург
Архитекторы

PROFI
124
8
 
 
 

Дом в окружении сосен (1000 м.кв., монолитный железобетон)

Россия, Зеленогорск

Проект двухэтажного загородного дома из монолитного железобетона площадью 1000 м.кв. с плоской кровлей и панорамным остеклением. Участок — лесной массив в пригороде Санкт-Петербурга. Встроенный гараж на 3 автомобиля. Отделка фасада: материалы в серых, рыжих и земляных тонах, гармонирующие с ландшафтом. 1-й этаж — общественная зона: гостиная, кухня, кабинет, детская игровая, спортзал, гостевая спальня. 2-й этаж — приватная зона: два блока мастер-спален + две детские комнаты.

Автор проекта: Архитекторы Роман Коротков
Информация
Панорамное остекление
  • Тип файла: Документация
1
0
Поделиться
Автор проекта: Архитекторы Роман Коротков
Информация
Дом с плоской кровлей
  • Тип файла: Документация
2
0
Поделиться
Автор проекта: Архитекторы Роман Коротков
Информация
Встроенный гараж
  • Тип файла: Документация
0
0
Поделиться
Автор проекта: Архитекторы Роман Коротков
Информация
Двухэтажный современный дом
  • Тип файла: Документация
0
0
Поделиться
Автор проекта: Архитекторы Роман Коротков
Информация
Современный дом
  • Тип файла: Документация
0
0
Поделиться
Автор проекта: Архитекторы Роман Коротков
Информация
Большая терраса
  • Тип файла: Документация
0
0
Поделиться
Автор проекта: Архитекторы Роман Коротков
Информация
Панорамные окна
  • Тип файла: Документация
1
0
Поделиться
Автор проекта: Архитекторы Роман Коротков
Информация
Современный дом с плоской кровлей
  • Тип файла: Документация
2
0
Поделиться

Понравилась работа? Хотите реализовать нечто подобное?

Заполните форму ниже и автор работы сам свяжется с вами для обсуждения деталей.

Даю согласие на обработку персональных данных и согласен с правилами сайта